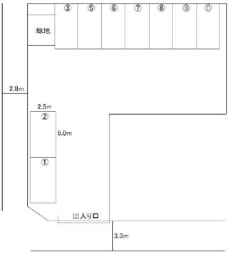
中村駐車場
住所
茨木市太田1-13
台数
9台
保証金
0円
賃料(月額)
8,000円
印刷する